​ ​

Living Conditions for the Dogs

Do they really live outside through the winter?

People often ask us if the dogs are kept outside through the winter and the quick answer is that yes, they are. Traditional husky breeds are capable of withstanding temperatures as cold as -40 degrees Celsius! However, in reality, there are a number of dogs on a heightened watch list in our farm when the temperatures drop below -30C since these are shorter-haired Alaskans or dogs who are more prone to frostbite of their nipples or balls (we have a frostbite check list which is updated weekly during dog checks, and three times per week, creaming and care of affected parts results) irrespective of temperature to ensure that problems do not become severe. And, of course, any dog that has an injury is brought inside to recuperate and is then gradually reacclimatised to the outdoor temperatures.

At some points in the winter, we may have up to 20 dogs in our house. Pasi is constantly threatening to move out since the dogs arguably have better living conditions (or at least are given higher priority in terms of needs) than we do!

In reality, however, it is better for the arctic dogs who are going to have to live and work outside in 'extreme' temperatures to be primarily outside so that they can acclimatise as well as possible, in terms of growing their proper winter coats, etc, to the conditions. They are sensitive to temperature changes and theoretically shed their insulation (their down layer closest to the skin) during the spring/summer months and then re-grow it in the fall.

Double Kennels and Cages or Individual Kennels and Running Circle Chains?

In Alaska, most dogs are kept on individual running chains. However, in Scandinavia, most dogs are kept in shared cages. Having visited a large number of sled-dog farms before setting up our own, we think that there are distinct advantages to both systems. Hence, we use a mixture of the two.

Some of our dogs live more or less permanently in one or the other system for particular reasons. (They may be too grumpy or unpredictable with other dogs to live collectively in cages or they may be so old that they start to find the chains difficult.) However, most rotate through both systems during the year.

Cages: Pros and Cons

The advantage of the cages is that the dogs can learn to live side by side with each other while having fun playing during the day and can curl up against one another to keep themselves warm during the night. Hence, they benefit from socialisation with the other dogs and use less energy (i.e., food) staying warm at night.

This latter issue is particularly important for shorter-haired racing Alaskans, so we have a number of dogs that live in the cages in the winter and on the chains in the summer. The other advantage is that it is harder for the females to mate accidentally with other males, and for this reason, most of the females live more or less permanently in the cages, as do all pups under one year old.

The main negative aspect to the cages is that the dogs in the cages are at greater risk of injuries through fighting – particularly at feeding time. Chocolate and Bernie, for instance, cannot be put in the same cage or even in adjacent cages without there being a big chance of a fight. Hence, we always have to think carefully about the cage order when rearranging dogs between different locations on the farm.

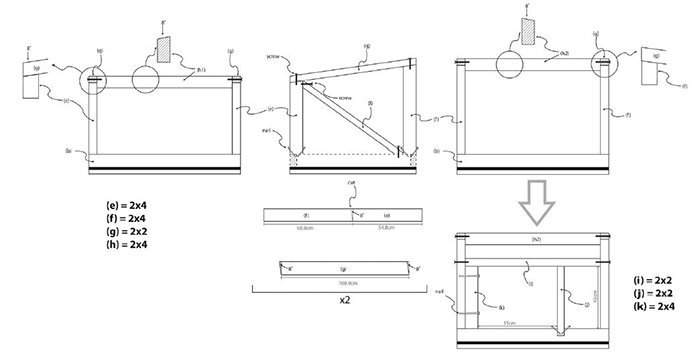
Dogs who live in the cages live in double kennels. In other words, a large kennel partitioned into two separate inner spaces. The partition is slightly offset to one side so that two dogs can cuddle up together on one side on the coldest nights. Having two entrances and two areas, however, means that even if the dogs have become grumpy with each other for some reason, they cannot block access to shelter to each other so they can always get into a kennel, whether together (if they so choose) or separately. We have designed and made these kennels ourselves from locally sourced materials. Similar kennels are used in our puppy kindergarten, but with an access ramp. Most kennels have a wind-block entrance. However, those used by the oldest dogs have the bottom part of the wind-block removed for ease of access.

Running Circles & Chains: Pros & Cons

When attached to the chains, the dogs live in individual kennels and have a large personal running area so they actually have even more freedom of movement than the dogs in the cages. Some of the areas are isolated from other dogs and are reserved for our grumpiest dogs. Others overlap with their neighbouring circles so that the dogs can still have contact with each other.

The main benefit of the chain system is that when the dogs live on chains, they learn how to untangle themselves very easily. This is very important for the development of the young dogs since they then have less risk of seriously injuring themselves if they become tangled in the lines when running. This is particularly important for the darkest months of the year (December and January) and for whenever the dogs are running in Northern Lights Safaris since it is hard for clients to judge when to break to give the dogs a chance to untangle themselves in the dark. Hence, the dogs have to be able to sort themselves out quickly and not rely on their musher to avoid injury.

When we are first training pups to live on chains, they move onto short chains during the days and back into the cages at night. Eventually, they move onto the standard length chains during the day and finally, also, through the night. Dogs that live close by each other tend to run together often, too, since this not only saves time for the guides when they are collecting the dogs for the teams, but the dogs also tend to be the best of friends.

Puppy Hilton & Puppy Kindergarten

When the pups first move outside, when they are a couple of months old, they move into our specially designed ‘puppy hilton’. This is a dual-level kennel with a staircase leading to the second floor which is designed to be difficult for the pups to climb, at first. In this way, the mom can ‘escape’ from the pups from time to time to the second floor where she always has food and drink available. After another month or so, most pups can climb the stairs but by this stage, they are more or less weaned and they move, during the days, into the puppy kindergarten, next door. Although most of our fences have barricades between them to prevent fighting, there are no barricades between the Hilton and the Kindergarten so the pups still have the security of having their mom very close by. Once they are 6 or so months old, they start to share cages with other older dogs who can keep an eye on their social development and make sure that they don’t get too big for their boots.

Roofed and Floored Sick Dog Facility

This 4-cage floored and roofed sick-dog facility was built in the summer of 2014 to hopefully reduce the burden on our house during mid-winter (Pasi had had enough of having nearly 20 dogs in the house!). We had already built one such cage on Santa Safari's / Transun UK's farm in the summer of 2012 (since we knew that long-term, their dogs would be more in need and might not have another chance) so, when we finished our contract with them and could justifiably turn our attention back to developments on our own farm, this was one of the top things on our priority list.

Choice of Kennels

We make a lot of our kennels ourselves from locally sourced materials. All of the kennels in the cages, for instance, are made to our own design and have a double entrance so that there is no chance of one dog denying another access in bad weather. On one side, there is an area that is large enough for two dogs at a squeeze - and dogs tend to sleep together in this side in the winter for added warmth. The other side is an area big enough for one dog and the dogs tend to sleep in the separate sides in the warm summer months.

Our sick-dog kennels are also self-made. The sick dog kennels are designed with a wider entrance way so that dogs wearing 'post surgical' cone collars can still access shelter.

And our speciality puppy kennel, the Hilton, is designed with 2 floors so that the moms can escape from their big litters when they are all wanting food at the same time and so that we can also keep a constant supply of food for the moms at hand. (Of course at some point, the pups learn to climb too but this is generally around the same time that they would be moved out, anyway, to the kindergarten next door).

We also buy some single kennels from ThemeFix in Kiruna for the dogs living on chains in our running circles. ThemeFix is a cooperative supported by the Municipality of Kiruna that offers work rehabilitation for those who have been outside of normal society for some reason (eg, ex-alcoholics), who need training and support in order to function in a work environment. They make a lot of wonderful products at affordable prices – just one of which are these dog kennels - so we generally stop by whenever we are picking up other dog products from Bjorkis or Oinakka.

General thoughts on kennel design
All of our kennels are designed to allow the dogs to sunbathe on the roofs, off the ground. Sled dogs work hard whether it be for racing, touring or recreational mushing so they deserve a top notch house! They are designed to also be cool during the summer months and to have an overhanging front roof to provide ample shade regardless of the sun angle. The overhanging roof and windshields which we have added to each kennel (a bit of an ongoing battle keeping up with dogs chewing them) are there to create protection from rain and to try to trap the warmth the dog creates when inside the kennel, in. The snug entrance allows refuge from wind and rain keeping the dogs comfortable and safe from all elements. Because wood is natural and breathable it allows air to aerate through in case any moisture was to get inside it would quickly be able to dry. In the spring we clear out all the straw from their houses and wash them out thoroughly so they are clean and fresh for the summer months.

Our houses are specifically made to be comfortable, easy to access and spacious - but within reason. A really large space ismore difficult for the dogs to keep warm during the winter. All of the kennels are raised off the ground on stable blocs and this helps to insulate them from the ground in the winter in particular.

The front page of our 'how to make a double kennel' guide is shown here.

We also take the time, each day, to clear away the snow around each of our sled dog’s houses to ensure no snow falls inside and - although some farms allow the snow to build up for insulation around the kennels, we are confident in the insulation of our kennels and we keep both the roof and the area immediately around the kennels free from snow. This means that come Spring and the sunny days, the dogs are able to jump on the roofs and sunbathe (which they would not be able to do if there was a pile of dangerously consolidated icy snow up there)!

Our single and 2-dog kennels have a fairly snug entrance since this protects them from cold blowing wind and falling snow and reduces the ease with which the wind (or dogs) can blow / move the insulation back out. The windshields also help to keep the insulation in, whilst also reducing the chance of the male dogs wetting their insulation when marking.

However our sick dog kennels are specifically designed to allow dogs wearing a post-operation collar to still access them with their collar / cone on their heads. An extract from our 'how to make a sick-dog kennel' guide is shown here. These kennels have a completely different design and are obviously less insulated than normal since the entrance way has to be larger.

Do they have bedding in their kennels?
Yes! We change/add bedding to the well-insulated kennels at least once a week in winter (more when it is particularly cold). In summer, they tend to push it out if they are too warm but we still put it into the kennels of the dogs which are susceptible to pressure sores without it.

Weuse a mixture of straw and wood chips and pine fibres for insulation in the winter. Straw is the normal choice for the multiday safaris since it does not blow away as easily as the expensive pine fibres. It is better than hay in that it is lighter and more fluffy and therefore better at creating a self-warmed micro-climate for them to snuggle up into.

In the farm itself, we tend to use the pine fibres more, since it is less likely to cause the dogs respiratory, eye or ear problems if it gets damp and then dries out - and some dogs are very good at pulling their bedding out of their kennels. We know that some really like to have a patch of straw or pine fibes on which to sleep during the day (down to even very cold temperatures) outside on the snow. However, once they have pulled their bedding out three times (three strikes and you are out, rule), we add wood chips to their kennels since these are far harder for them to get out.

Of course the bedding is spot checked daily and handled weekly toensure that it is still in good condition for the dogs.Huskies are known to be territorial so inorder for them to “claim” an object the males will generally “mark “it. It is not uncommon for them to mark theentrance of their house as well as their straw to inform the other huskies who it belongs to! This, in turn keeps ourkennel managers very busy!

To ensure that our bedding staysdry and free of small animals during storage we have one trailer designated specifically for its storage.

Do the dogs ever get to run free?
Yes! But not all at once! And both the lucky ones selected and, indeed, the rest of the farm, get so excited as they dash up and down the running fences, that this is pretty much restricted to a morning activity when, hopefully, most of our neighbours are at work!

​ ​ ​ ​ ​ ​ ​ ​ ​ ​ ​ ​ ​ ​ ​ ​ ​ ​ ​